PERHO Valkeinen rantamökki
PERHO Valkialammintie 43 Möttönen
Perhossa, Valkiajärven rannalla sijaitseva vapaa-ajan tila Visala 584-401-217-5 tarjoaa valmiin ja käytännöllisen kokonaisuuden heille, jotka arvostavat luonnonläheistä mökkeilyä ja selkeää, toimivaa pihapiiriä. Tontti on kooltaan 5046 m² ja sijoittuu kuivaan kangasmaastoon harvan mäntymetsän keskelle. Ranta on rantaelämään hyvä ja hiekkainen. Tie vie perille saakka, ja ympäristö on luonteeltaan metsäinen ja järvelle päin avara. Järven vastarannalla sijaitsevat tuulimyllyt näkyvät maisemassa ja voivat ajoittain tuottaa hieman ääntä, mutta kokonaisvaikutelma pysyy rauhallisen maltillisena.

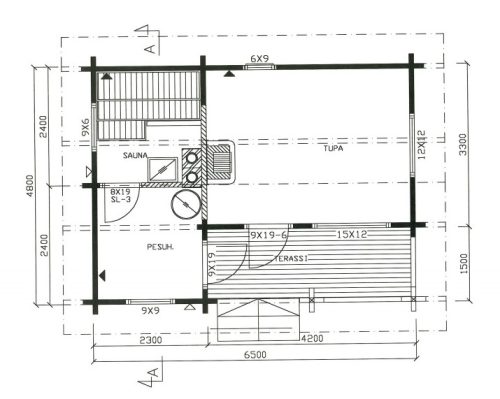
Tilan ydin on kerrosalaltaan 31 m²:n huopakatteinen vuonna 2011 valmistunut kuvan mukainen höylähirsimökki, joka on suunniteltu selkeästi vapaa-ajan käyttöön. Vähäisen käytön jäljiltä mökki on siisti ja liki uutta vastaavassa kunnossa, vaikka ikää jo on. Mökin terassilta on ovet tupaan sekä pesuhuoneeseen. Sauna ja pesutupa ovat puulämmitteisiä kiukaan ja vesipadan kautta. Tuvan lankkulattia, hirsiseinät ja kattopaneelit sekä puukamina tuovat perinteistä mökkitunnelmaa, kun taas pesu- ja saunatilojen klinkkerilattiat ovat käytännölliset ja helppohoitoiset. Asuinpinta-alaa on 25 m². Järven suuntaan avautuu 6 m²:n katettu terassi, jonka jatkeena on suurempi avoterassi – toimiva ratkaisu ulkoilmaelämää varten. Mökki myydään kuvien mukaisin kalustein, mikä helpottaa käyttöönottoa.
Pihapiirissä on lisäksi 11 m²:n huopakattoinen varastorakennus, jossa on kuivakompostivarusteinen puucee, varastotilaa ja puukatos. Rakennukset muodostavat toimivan kokonaisuuden, jonka peruselementit ovat hyvässä käytettävässä kunnossa. Järven rannassa sijaitsee oma laituri, joka soveltuu niin uimiseen kuin veneen pitoon. Rantaviivaa noin 60 metriä.
Tila kuuluu RA-merkinnän mukaiseen loma-asuntoalueeseen, ja rakennusoikeutta on tontilla runsaasti jäljellä. Loma-asunnon enimmäiskerrosala on 120 k-m² ja kokonaisrakennusoikeus 160 k-m², joten mahdollisuus lisärakentamiseen on merkittävä, mikä antaa tilaa pidemmän aikavälin suunnitelmille. Sähkö- ja vesiliittymiä ei ole, mutta aurinkopaneeleilla ja akustolla on mahdollisuus saada suhteellisen helposti käyttösähkö naapurimökkien tapaan.
Osoite: Valkialammintie 43, 69980 Möttönen. Kohde myydään hintaan 39 000 € tai korkeimman tarjouksen mukaan. Ostaja maksaa lisäksi kaupanvahvistuksen 138 €, varainsiirtoveron 3 % kauppahinnasta sekä lainhuutokulut MML:n hinnaston mukaan.
Tee tarjous tästä Valkijärven rantapaikasta Visala 217:5 alla olevalla lomakkeella viimeistään 15.12.2025